Redevelopment and extension the existing building to provide 9 residential apartments and commercial space-STP
Full Description
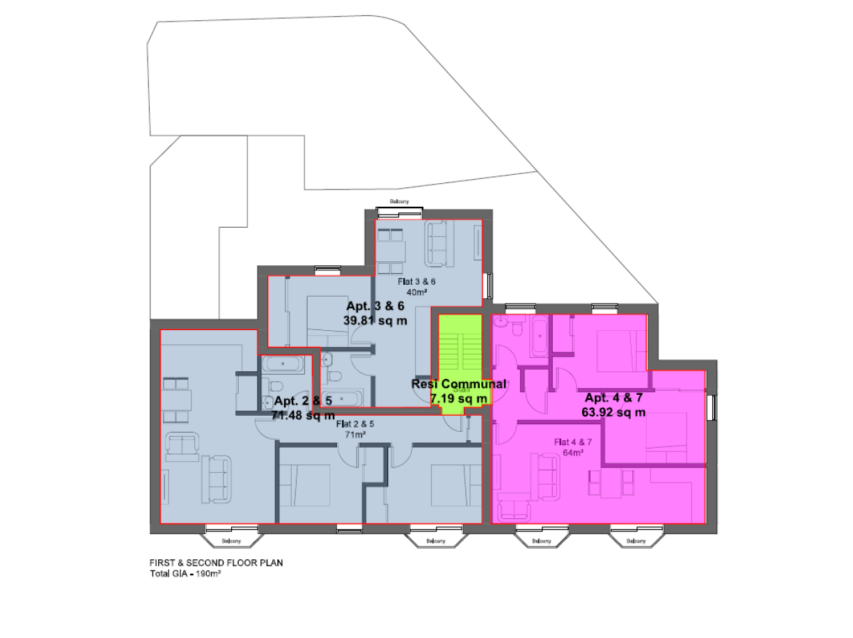
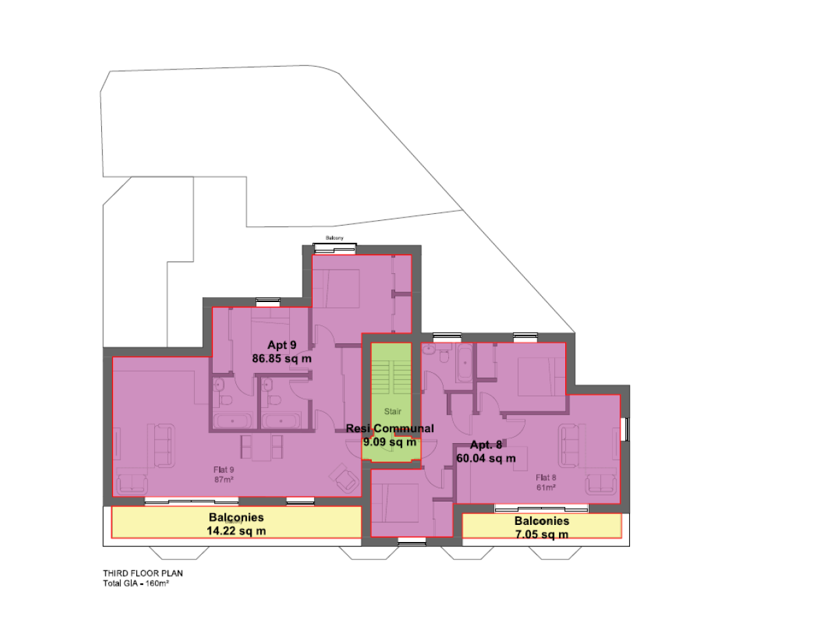
The property is a redevelopment opportunity to provide residential apartments and a retained amount of commercial space on the ground floor. Subject to the usual planning consents, the property has the potential to be converted into 9 apartments.
The property is located in an outstanding location on The Esplanade overlooking both the pier, beach waterfront and square. The site is positioned towards the centre of the town which is one of the principal resorts on the West Sussex coast. There are many leisure facilities in the immediate vicinity along with further opportunities towards Chichester and the South Downs, including the Goodwood Estate and the renowned Festival Theatre. The town also provides frequent train services to London (Victoria) and Gatwick Airport.
Terms
The property is available for sale. Guide available upon application.
Planning
Interested parties to make their own enquires. Pre application advice dated 4th July 2025 is available upon request.
VAT
VAT may be payable on the purchase price.
LEGAL FEES
Each party to bear their own legal fees.
BUSINESS RATES
Current rateable value, from 1 April 2023, is £8,100.
ENERGY PERFORMANCE CERTIFICATE
Available upon request.
VIEWINGS
Strictly via sole agents
Jonathan Manhire MRICS 07928 525 964
[email protected]